Te koop Finca - Cortijo Costa Del Sol Cártama € 275.000,-
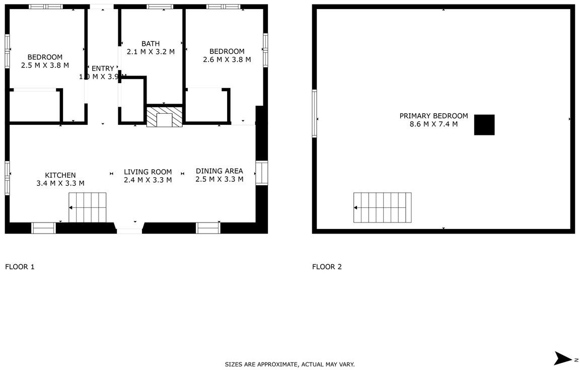
Fantastic investment opportunity: A beautiful and welcoming renovated country house nestled on a 1927 sq m fenced plot in the Rio Grande area of Cártama. The house has a living area of 156 sq m spread over two floors with three spacious bedrooms, a full indoor bathroom with shower, and an outdoor composting toilet. The second floor is an open-plan attic space with a large 65 sq m room (which could be divided into more rooms) featuring solid Finnish red pine flooring and ceilings. There is also a laundry/storage room, a living room with a highly efficient cassette fireplace and a sash and hinged door, a large kitchen, tilt-and-turn PVC windows with double glazing, thick walls for excellent thermal insulation, and a carefully curated Andalusian rustic style that brings a touch of warmth and freshness to every room. The house has a high-power (three-phase) electrical supply equipped for fast charging of electric vehicles. Located in an idyllic natural setting, this property offers tranquility and wonderful unobstructed views of the Guadalhorce Valley, just 5 minutes from the Málaga-Pizarra road and 15 minutes from the regional hospital. It is easily accessible from Málaga, Pizarra, Coín, Villafranco, Cerralba, and Cártama Pueblo. If you are looking to live or invest in a unique, peaceful environment with easy access to the city, don't hesitate to visit this property.
meer info