Te koop Herenhuis Costa Del Sol Campo Mijas € 445.000,-
Spectacular Townhouse in Campo Mijas.
Located in a residential complex with a swimming pool, tennis court, and beautiful gardens, this property offers the best of Campo Mijas: comfort, privacy, and outdoor spaces for the whole family.
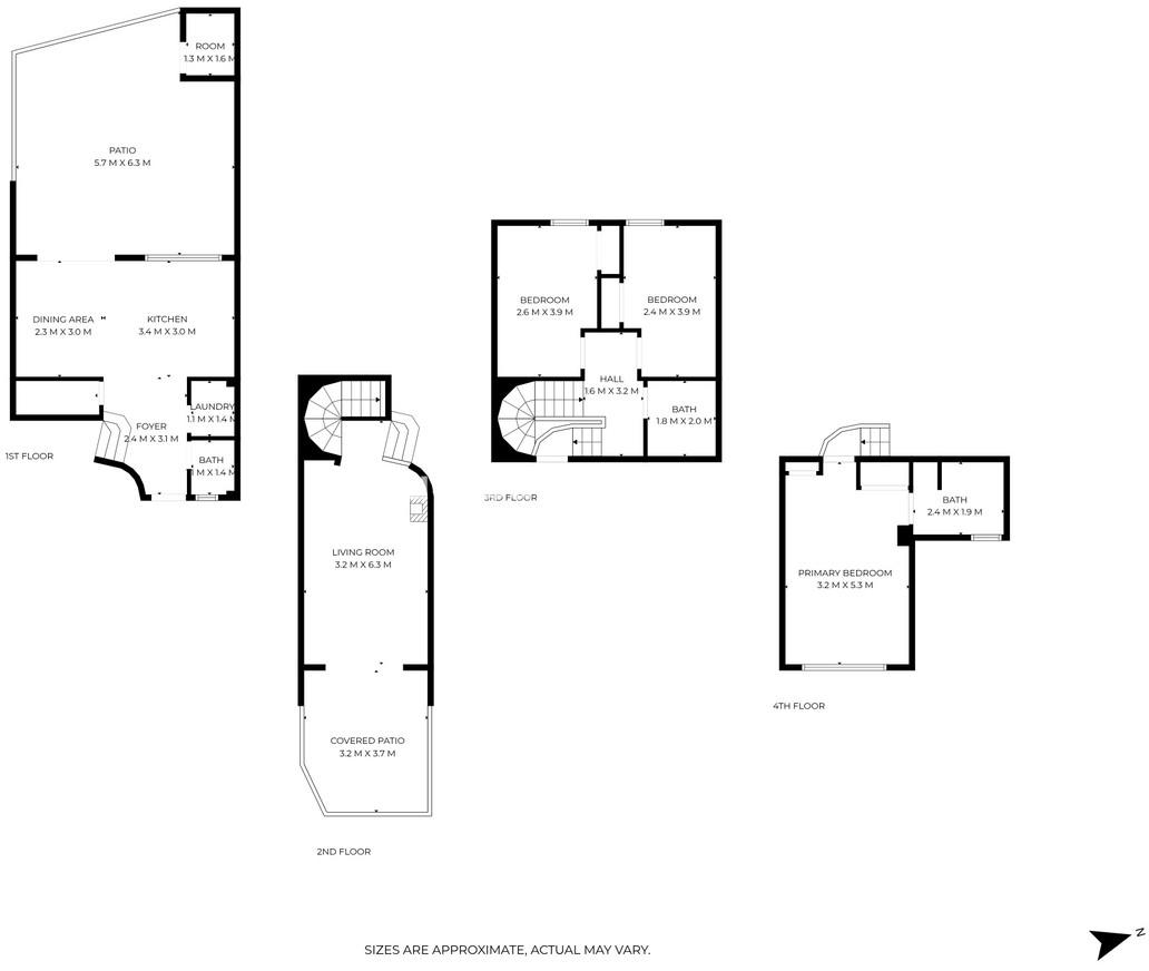
This two-story southwest-facing townhouse enjoys spectacular mountain and sea views. The rear terrace, accessible from the kitchen, features a fantastic barbecue area, while the main terrace off the living room is perfect for relaxing and enjoying the sun and sunsets.
Ground floor: Open-plan kitchen with dining area, double-height living room, guest toilet, utility room with water heater, laundry area, and several storage spaces.
First floor: Three bedrooms, including the master with en-suite bathroom, and a shared bathroom for the other rooms.
The property also includes a garage with direct access to the home, providing extra convenience for everyday life.
Bus stop just 1 minute away, Los Boliches and Cala de Mijas beaches 10 minutes by car, schools, supermarkets, and shopping centers 6–7 minutes away, and nearby parks.
A unique property that combines stunning views, comfort, and location — perfect for those looking for a complete home on the Costa del Sol.
meer info